近年来,石材幕墙由于装饰效果好,形式变化多样而被广泛采用。今天,我们主要为大家简述一下后背栓接式敞缝石材幕墙的施工工艺。
1.工艺原理
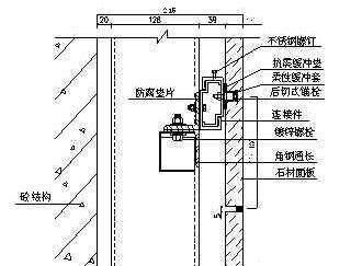
石材幕墙背栓式干挂技术采用柱锥式钻头和专用设备在石材的背面钻孔,并能使底部扩孔,可保证准确的钻孔深度尺寸。锚栓不受膨胀力装人圆锥形钻孔内,按规定的扭矩扩压使扩压环张开并填满孔底,形成凸形结合。锚栓在背部固定,从外面看不见。安装时外墙上的埋件与竖框的角码焊接,背栓横框用螺栓与竖框连接,通过背栓将石材固定在横框上。
2.工艺流程测量放线
竖向构件(析架式柱)安装——安装防水板——安装石材板块-——定位、调平——注胶和清洁。
(1) 测量主线以泌量基准点坐标为基准,利用激光经纬仪、铅垂仪垂直测量,并传递至各楼层,在各层楼面重新测设井字形线控制网,将其平移至外梁上。作竖向测点联结,可建立垂直基准线并由此可构成立面控制网,将其平移至立面梁柱,确定各楼层的固定件位置并做好标记,各层立面以此标记为准,采用钢丝线确定立面位置,各楼层的立柱以此立面位置为准进行安装。
(2)竖向构件、析架或柱的安装在连接构件安装后复测定位偏差的基础上,进一步根据幕墙基准面调整安装衍架或柱及柱梁体系柱,使其精确就位,分段控制,以免误差积累。将安装允许偏差控制在2mm以内。
(3)安装防水板:防水板定位以放在预埋件上的线为准,必须严格控制两个方向的位置误差和角度误差,安装时两块铁码的距离必须一致,并进行表面涂刷防腐油漆处理。凡是误差超过规范规定的必须进行修复校正处理。
(4)石材板块安装前应根据石材施工排板图检查石板与图是否相符,用环氧树脂注满槽坑,平稳抬起石板,将槽口对准已固定在横梁上的扣件缓缓擂人,再将另一对扣件插人上部槽内,使石板稍向前倾,当扣件挂上横梁后,再让石板恢复到垂直状态,并将扣件向下压实,检查调整石板的垂直水平进出位置,使其符合立面控制线。
(5)定位、调平:板材安装过程中,按照“横平竖直”的要求用垂线垂直调平,垂缝偏差值不能超过(或少于)2mm/m。用钢丝线拉直,用插尺检查竖面偏差值不能(超过或少于)3mm/m,横缝用平水管调平,偏差值不能超过(或少于)2mm/m。
(6)注胶和清洁:幕墙安装完以后,先在缝隙两边贴上分色纸,为使挤胶厚度达到设计要求(4mm一6mm),在挤胶之前先在缝隙内填上发泡胶条,然后从上往下挤密封胶,再用胶刮板刮平,使表面达到平滑,确保挤胶处清洁于净,并在规定时间内完成挤胶操作。
今天的内容就到这里了,这些知识希望能对大家起到一定的作用。最近卡特能幕墙正在征集幕墙相关的文章,或是美文、或是与幕墙相关的故事、或是技术类的文章,题材不限。如果大家有兴趣,欢迎后台联系小编,我们一起将更多的知识分享给大家。








加载中...